Projekt Rückblick für Raumakustik
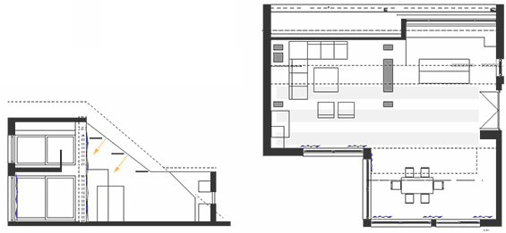
Raumakustik für eine Neubauvilla

Anforderungen: Durch die transparente offene Grundrissgestaltung und rund 50% Fensterfläche wurden geeigneten Materialien für die Deckenausbildung und Wandflächen verglichen und bewertet.
Akustik für High-End Audio

Anforderungen: Das Penthaus eines Musikliebhabers strahlt vor offener Eleganz. Jedoch sind die Nachhallzeiten eindeutig zu lange für den erwünschten Musikgenuss. Insgesamt gilt es dem Gallerieraum eine bessere Akustik zu verpassen, auch um dem Wohnen als solches mehr Behaglichkeit zu bieten.
Akustik - Audio - Licht - Innenarchitektur

Anforderungen: Ein 2-geschossiges privates Wohnhaus soll eine gute Raumakustik in jedem Bereich bieten. Als Schwerpunkt geht es um die gute Hörsamkeit der Wohnräume, die zusammen mit der Hausautomation als Teil der Lichtsteuerung den biochronologischen Rhythmus perfekt begleiten. Hoher Wohnkomfort mit Behaglichkeit für alle Sinne.
Workspace - Akustik Beratung
Q4 2016 - Q1 2017

Anforderungen: Eine über 2 Etagen verteilte Bürofläche von rund 700qm soll als Großraum Situation optimiert werden. Das eigens entwickelte Möbel wurde nach den Kriterien der Schallbeugung, Isolation und Reduktion der Gesamtemission entwickelt. Eine skalierbare und preisbewusste Lösung ist entstanden, die gut zur Philosophie des Startup-Unternehmen passt.
Raumakustik Beratung - Wohnraumakustik
Q3 2016
Anforderungen: Ein rund 50qm großes Wohn- Esszimmer bekommt eine "unsichtbare" raumakustische Ertüchtigung. Alleine über die Absorbtion der Decke soll die gewünschte Nachhallreduzierung erreicht werden. Dabei wurden die Systeme von Knauf / Fumi, Knauf STO sowie Knauf / Dekozell und rein Dekozell verglichen.
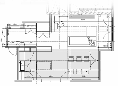
Möbel, Licht und Audiokonzept für barrierefreies Wohnen
Q2/3 2016

Anforderungen: Der Nutzer ist auf seinen Rollstuhl angewiesen. Neben der innenarchitektonischen Gestaltung sollen auch die Multimedia Bedürfnisse und ein Lichtkonzept in die Planung einfließen.
Raumakustik und Lichtkonzept für ein Mehrzwecksaal
Q2 2016
Anforderungen: Der rund 1.400m³ historische Saal bekommt neben der neuen Elektroakustik auch eine raumakustische Ertüchtigung. In Verbindung soll auch die Beleuchtung erneuert werden und als per Control4 steuerbares Lichtkonzept installiert werden.
Akustik + Audio Beratung für ein privates Heimkino
Q2 2016
Anforderungen: In Rahmen eines freistehenden Neubau soll ein dezidierter Heimkinoraum entstehen. In der Grundlagenermittlung wurde vor dem ersten Spatenstich die Dimensionierung der Kubatur optimiert.
Unsichtbare Lautsprecher Beratung für ein Villen-Neubau
Q3 2016 - Q1 2017
Anforderungen: Für die moderne Villa die sich gerade im Bau befindet, werden unsichtbare Lautsprecher von Cerasonar für 10 der 12 Multiroom Hörzonen eingesetzt. In Verbindung mit den Control4 Matrix-Verstärken entsteht eine unsichtbare Audiolösung mit exzellenter Klangqualität.
Unsichtbare Lautsprecher Beratung für ein EFH -Neubau
Q2 2017
Anforderungen: In dem entstehenden Neubau soll die Heimkinolösung sowie Multiroom-Beschallung mit unsichtbaren Lautsprechern realisiert werden.
Akustik + Audio Beratung für eine Wohnung in Frankfurt
Q3 2016
Anforderungen: Im Rahmen einer umfangreichen Renovierung, soll die Wohnung ein zwei Bereiche aufgeteilt werden. Dabei soll der private Teil eine Schallschutz technische Ertüchtigung erhalten. Das neue offene Raumkonzept Kochen/Essen/Wohnen wird Raumakustisch unsichtbar optimiert als Teil der Raumbildenden Maßnahme
Akustik-Beratung für Büroräume in Frankfurt
Q2 2016
Anforderungen: Eingangs formuliert, wurde der unzureichende Schallschutz bemängelt. Im ersten Vor-Ort Termin zeigten die Erschliessungsbereiche sowie die Büroräume eine zulange Nachhallzeit, die der sehr reduzierten Raumgestaltung geschuldet ist. Bei den Raum hohen Glastüren werden die Fugen optimiert und in den Büros sowie Foyer-Flurbereich absorbierende Materialien unsichtbar integriert.
Akustik-Beratung für ein Dachstudio im Vogelsbergkreis
Q4 2015
Anforderungen: Der Bauherr möchte für seine neuen Lautsprecher, das Hornsystem Martion Orgon, seinen Hörraum optimieren lassen. Das ca. 60qm* große Dachstudio hat eine Optimierung im Tieftonbereich notwendig. Mit den momentan vorhandenen Avalon Eidolon wird im Tiefbassbereich die Schwammigkeit durch die Raumantwort hörbar. Selbst Verstärker mit einem hohen Dämpfungsfaktor wie die Emitter von ASR schaffen es nicht einen trocken Tiefbass zu erzeugen.
Maßnahmen: In den für die Raumecken geplanten Schränken, werden Resonatoren versteckt, um Raumresonanzen (Moden) wirksam zu reduzieren. Auch die vibrationsgefährdeten, vorhandenen GK-Verkleidungen werden nachträglich beruhigt.
* Diese Raumgröße gilt akustisch noch als kleiner Raum, der sich insbesondere durch lange Nachhallzeiten in den tiefen Tönen bemerkbar macht. Auch wenn solche Räume, wie sie typischerweise in Häusern und Wohnungen vorkommen, ausreichend „möbliert“ sind und textile Bodenbeläge und Gardinen / Vorhänge aufweisen, der lange Nachhall im Tiefton bzw. die Raummoden blieben trotzdem hörbar.
Akustik-Beratung und Untersuchung
für ein High-End Heimkino im Saarland
Q4 2015
Anforderungen: Der größte Raum im UG wurde als Heimkino umgenutzt. Neben der raumakustischen Ertüchtigung sollten die Frontlautsprecher in eine Vorsatzschale integriert werden. Diese bildet auch den Rahmen für den Reference 85 von Löwe. Die SIG-LCR 5 von Paradigm umrahmen den das Display mit knackiger Soundqualität, die von Vor- und Endstufen Boliden der Marke Anthem für pegelfesten High-End Klang angetrieben werden. Die Bedienung erfolgt über Crestron.
Multimediaberatung im Hoch-Taunus-Kreis
Q3 2015
Anforderungen: Im Rahmen einer Neubau-Villa sollten der Wohn- / Essbereich und sowie Küche, Dachstudio, Bad und Garten Teil einer Multiroom-Audio Lösung werden. Die Technik wird zentral in einem Technikschrank installiert. Die Steuerung von Licht/Jalousie (KNX-Bus) für diese Räume erfolgt wie auch die Bedienung der AV-Komponenten mit Control4.
Merken
Merken
Merken
