Raumakustik
Das eine Kirche hohe Nachhallzeiten hat, dürfe allgemein bekannt sein. Die hohen Kirchenschiffe und langen Korridore reflektieren den Schall dank der massiven Steinbauweise wieder zurück. Hier ist dieser "Hallraum" ein gewünschte und essentieller Bestandteil von geistlicher Musik und gesprochenen Wort. 4-5 Sekunden Nachhallzeit und mehr sind nicht unüblich.

Bei einem Konzertsaal oder Theater wird typischerweise eine Nachhallzeit von 0.9-1.2 Sekunden angestrebt. Jedoch sind hier nicht nur der reine "Nachhall" zu bewerten sondern auch die Klarheit und Brillanz des Klanges, der sich durch die Diffusität der Wände und Decken sowie der Schalllenkung ergeben.

Eine Tonregie für die Produktion von Musik oder Mehrkanalton hat eine noch geringere Nachhallzeit von 0.5-0.7 Sekunden. Zu dem Aspekt der Nachhallzeit ist hier noch der hohe Schallschutz-Anspruch zu nennen. Noch aus der Zeit der analogen Aufnahmetechnik und geringerer Dynamikbandbreite als der heutigen Digital-Technik, musste der Anteil von Störgeräuschen aus der Umgebung minimiert werden. Damit sie nicht Bestandteil der Aufnahme wurden.

Gute Akustik bei minimaler Architektur? Wer auf minimale Raumgestaltung Wert legt, läuft in die Gefahr, dass diese Räume später ‘hallig‘ wirken. Große Fensterfläche, harte Fußböden und glatte Wände/Decken tragen ihren Anteil dazu bei. Jedoch bieten kreative Decken- und Wandoberflächen / Konstruktionen enormes Potential für das Wohlbefinden. Den eine gute "Hörsamkeit" rundet den Wunsch nach Behaglichkeit messbar ab.

Gute Akustik im Wohnraum auch ganz ohne Musik!
Die gute Hörsamkeit in "kleinen" Räumen ist ein wichtiger Schlüsselfaktor für die Behaglichkeit. Kleine Räume sind unter akustischer Betrachtung beispielsweise Wohn- und Büroräume. Auch wenn Sie stolz behaupten würden, das ihr 100m² Wohnzimmer ja nicht klein ist, ist er es unter der Betrachtung von Raumresonanzen aber dennoch. Im Vergleich zu einem Auditorium mit 2.500m³ Raumvolumen, fallen in so einem großen Raum die Raummoden weniger auf, weil insgesamt die Anzahl (Dichte) der möglichen Wellenlängen so groß wird, das keine "einzelne" oder wenige so herausstechen wie bei einem Wohnraum. Werden diese wenigen Resonanzen nun per Musik oder Sprache angeregt, klingt der Raum hier obwohl er viel kleiner ist, ähnlich lange wie in einer Kirche nach. Die Energie baut sich ähnlich langsam ab, weil sie immer wieder leicht mit angeregt wird und nur durch die Reibung der Luft an Energie verliert. In einer Kirche sind es jedoch keine Resonanzen sondern die schieren langen Entfernungen in denen der Schall wieder als Reflexion zurückkommt. Wohnräume mit vielen glatten Flächen erzeugen zudem Flatterechos. Die für den Büro- und Zweckbau bindende DIN 18041 (Hörsamkeit in kleinen Räumen) bietet auch viele positive Aspekte für den privaten Wohnraum. Beim Haus- und Geschosswohnungsbau ist nur der Schallschutz bindend.
Bauakustik / Schallschutz
Diese Disziplin ist bei Neubauten in der DIN 4109 geregelt. Eine Ertüchtigung bei Bestandsbauten ist durch Trittschall-Optimierte Böden und Fugendichtigkeit sowie besserer Fenster möglich. Das entkoppeln / entfernen von vorhandenen Schallbrücken erfordert eine tiefere Betrachtung der Bausubstanz und Konstruktionsweise.
Raumakustik / Hörsamkeit
Wie oben erwähnt, gibt es für Wohnräume keine explizite DIN, jedoch ziehe ich hier bei meiner Beratung die DIN 18041 heran. Mit einem Mix von verschiedensten Vorsatzschalen-Konstruktion und Materialien lassen sich auch in Bezug auf Architektur Ästhetik hochwirksame Raumakustik-Verbesserungen erzielen.
Vorteile von guter Raumakustik
- Sprachverständlichkeit - wenn sich mehr als 2 Personen unterhalten wollen, spüren die Anwesenden sofort die Vorzüge wenn Wörter gut verständlich sind. Wenn der Unterschied von min. 20dB Direktschall zu Diffusschall (Reflexion von Wänden/Decken) besteht.
- Musik bzw. Audioqualität - Stereo oder Mehrkanalton hört sich einfach viel besser an! Ein einem Raum mit guter Akustik macht das Musikhören mehr Spaß, Heimkino-Lautsprecher lassen sich sogar in die Akustikmaßnahme einer Trockenbauwand-/Decke integrieren.
- Absorption von Störgeräuschen - Schallereignisse von Draußen werden weniger wahrgenommen. Beispielsweise, bei einem gekippten Fenster gelangt der Schall eines vorbeifahrenden KFZ in den Wohnraum. Diese Energie wird besser absorbiert und verteilt sich weniger im Raum und/oder die Raummoden weniger stark an.
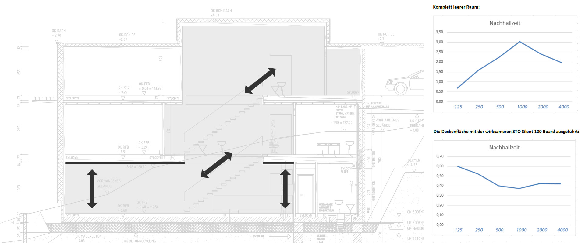
Beispiel - Gute Akustik und eine "klare" Architektur / Formensprache
Der Eigentümer möchte sein "halliges" Wohn-/ Esszimmer (ca.50qm) optimiert haben. Boden/ Fenstertextilien sollen aber außen vor bleiben.
Nach dem ersten Gespräch entwickele ich verschiedene Konstruktions-/ und Materialoptionen. Per Simulation werden in Abwägung an den baulichem Umfang die Maßnahmen bestimmt.
Also strebe ich eine bauliche Trockenbau-Maßnahme an, die sich zudem perfekt in die Architektur integriert. Erste Simulationen sehen viel versprechend aus.


Dipl.-Ing. (FH) Wolfgang Höhne
65929 Frankfurt am Main
Mobil: +49 (0) 171- 563 825 8

